- Самая простая модель с ручной колосниковой топкой
- Удобно размещается в маленьких помещениях котельных
- Работает с дымососом и вентилятором
- Тяга и дутье регулируются шиберами, входящими в комплект поставки
- Повышенная надежность работы котла обеспечивается изготовлением трубной системы из трубы сталь 10
- Гарантия 24 месяца, срок службы 10 лет
Золоуловитель 1,6 в Твери
- Компактный золоуловитель для твердотопливных котлов
- Может устанавливаться как сразу за котлом, так и на улице
- Универсальная конструкция позволяет организовать выход справа или слева, в зависимости от компоновки газоходов
характеристики
товара
оборудование
и гарантии
Технические характеристики золоуловителя 1,6
Промышленный золоуловитель 1,6 в Твери
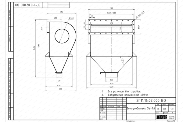
Золоуловители ЗУ 1,6 представляют собой горизонтальный циклон, предназначенный для сухой инерционной очистки газов от летучей золы (более 50 мкм) с максимальной температурой 260°С. Золоуловитель 1,6 может устанавливаться как сразу за котлом, так и за пределами котельной на группу котлов. Эксплуатируются в помещениях и вне помещений котельных под навесом при температуре окружающего воздуха от -60°С до +40°С.
На нашем котельном заводе вы также можете приобрести котел паровой угольный. Мы производим модели котлов паровых угольных различных мощностей.
Золоуловители ЗУ 1,6 относятся к типу горизонтального циклона по расположению оси очищаемого потока газа. Дымовой газ поступает во входное отверстие и движется между криволинейными стенками корпуса. Под действием гравитационных сил из потока очищаемого газа выделяются твердые частицы, которые накапливаются в бункере. Зола удаляется через снизу шибер. Очищенный газ отводится из золоуловителя по патрубку через круглое выходное отверстие на боковой стенке.
В комплект поставки золоуловителей входит: бункер-накопитель и корпус золоуловителя.
Золоуловитель ЗУ 1,6 применяется для улавливания золовых отложений после водогрейных котлов КВр и КВм мощностью 1,6 Гкал.
Технические характеристики золоуловителя 1,6
| Параметры | Размерность | Золоуловитель ЗУ 1,6 |
| Номинальная производительность | м³/ч | 6700 |
| Диапазон рабочего регулирования | % | 90-100 |
| Коэффициент очистки | % | 87 |
| Номинальное аэродинамическое сопротивление | Па | Не более 800 |
| Максимальная температура газов | °С | 200 |
| Сечение входного отверстия | мм | 250×1000 |
| Объем бункера накопителя | м³ | 0,05 |
| Масса золоуловителя | кг | 375 |
| Длина | мм | 720 |
| Ширина | мм | 1088 |
| Высота | мм | 1315 |
| Полный срок службы | лет | Не менее 5 |
| Применение: котел/группа котлов суммарной мощностью до | МВт | 1,86 |
Купить золоуловитель 1,6 в Твери
Для того чтобы купить золоуловитель 1,6 в Твери вы можете сделать заявку в отдел сбыта по телефону 8-800-700-0643, либо оформить заказ онлайн. Инженеры-консультанты дадут консультацию и рассчитают стоимость доставки. Транспортирование может осуществляться автотранспортом, ж/д полувагонами и речным транспортом.
Дополнительное оборудование золоуловителя 1,6
- Модель с механической топкой прямого хода с ленточным колосниковым полотном ТЛПХ
- Работа на каменном и буром угле повышенной влажности
- Полностью автоматизированная работа – подача и равномерное распределение топлива, механическое золоудаление
- Надежная работа котла обеспечивается изготовлением трубной системы из трубы сталь 10 повышенной прочности
- Удобные люки для очистки поверхностей нагрева
- Модель с механической топкой с шурующей планкой ТШПМ
- Работа на каменном и буром угле повышенной влажности
- Полностью автоматизированная работа – подача и равномерное распределение топлива, механическое золоудаление, контроль температуры и давления, контроль перегрузки планки
- Надежная работа котла обеспечивается изготовлением трубной системы из трубы сталь 10 повышенной прочности
- Удобные люки для очистки поверхностей нагрева
- Модель с ручным забросом топлива в топку и полуавтоматическим сбросом золы шлака при помощи поворотных опрокидывающихся колосников
- Дутье и тяга регулируются шиберами
- Надежная работа котла обеспечивается изготовлением трубной системы из трубы сталь 10 повышенной прочности
Сертификаты и гарантии золоуловителя 1,6